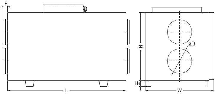
HRS-R H 400 E EKO hővisszanyerős légkezelő (400 m³/h)
1 310 740 Ft /darab
Nettó ár: 1 032 079 Ft /darab
- Szállítási idő: 3 - 5 hét
- Cikkszám: L010212040120


