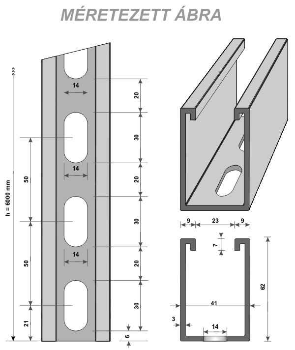
C-sín (szerelősín) 41 x 62 x 2,5 mm 6 m / szál
A megvásárolható legkissebb mennyiség: 1 szál = 6 méter
Ft /méter
8 186 Ft /méter
Nettó ár: 6 446 Ft /méter
Ft /szál
49 117 Ft /szál
Nettó ár: 38 675 Ft /szál
- Szállítási idő: Raktárról azonnal
- Cikkszám: SZ-MH2,5-6000
